JIS F7310 Cast Iron Angle Valve
The JIS F7310 cast iron angle valve strictly adheres to Japanese industrial standards, ensuring high performance and safety. Designed specifically for demanding piping systems, it undergoes comprehensive testing to provide reliable sealing and durability. Suitable for marine applications, it is a compliant choice for ensuring stable system operation.
Overview
Typical Ship System Applications
Seawater Cooling System: Used for shutting off and regulating the cooling pipes of the main engine and auxiliary engines.
Ballast Water System: Controls the inflow and outflow of water to each ballast tank, ensuring ship stability.
Bildle Water and Firefighting System: Acts as a critical shut-off valve, ensuring reliable system operation in emergencies.
Domestic Water System: Used for water supply pipes to the galley and toilets.
Product Features and Advantages
Compliance Certification: Manufactured and tested strictly according to JIS F7310 standards, providing verifiable quality assurance.
Rugged and Durable: The valve body is made of high-strength cast iron with a corrosion-resistant surface treatment, suitable for various media such as water, oil, and gas.
Excellent Sealing: Precision-machined valve seat and disc ensure tight shut-off, minimizing the risk of leakage.
Easy to Operate: The ergonomically designed handwheel ensures smooth opening and closing, making it easy to operate even under high pressure.
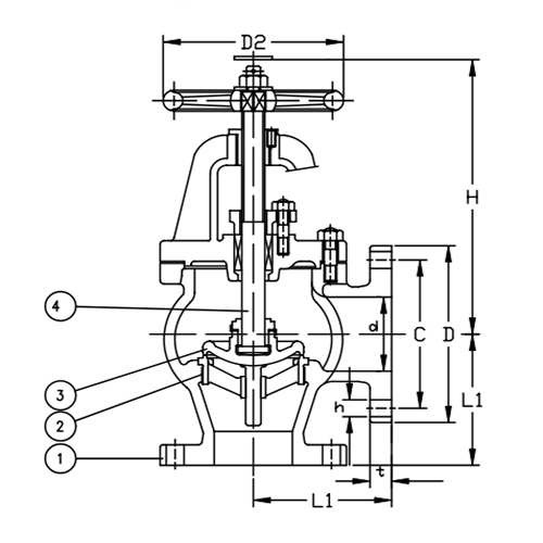
Reference Drawing

Parameters
Size | L1 | D | C | No. | h | t | H | D2 |
50 | 120 | 155 | 120 | 8 | 19 | 20 | 255 | 160 |
65 | 130 | 175 | 140 | 8 | 19 | 22 | 270 | 200 |
80 | 150 | 200 | 160 | 8 | 23 | 24 | 295 | 224 |
100 | 170 | 225 | 185 | 8 | 23 | 26 | 330 | 250 |
125 | 200 | 270 | 225 | 8 | 25 | 26 | 390 | 315 |
150 | 225 | 305 | 260 | 12 | 25 | 28 | 435 | 355 |
200 | 250 | 350 | 305 | 12 | 25 | 30 | 540 | 450 |
Why do shipyards and ship owners choose us?
Standardized Professionalism: We have in-depth knowledge of JIS F series marine valve standards, and our products comply with specifications such as JIS F7310, seamlessly integrating with mainstream Japanese and Korean marine equipment.
Quality Traceability: From casting to testing, every step is documented. We provide not only products, but also complete quality records.
One-Stop Supply: In addition to cast iron angle valves, we also offer a full range of marine valves, including bronze valves, butterfly valves, and check valves, simplifying your procurement process.
