What is Marine Self Closing Valve?
Overview
Working Principle
Self-closing valves operate similarly to other self-closing valves and often include a spring-loaded mechanism or other technology to ensure that the valve closes automatically after a period of time, or after the user stops applying opening force. This helps to increase efficiency and reduce waste of resources in ship operations, as well as to prevent leakage of fluids that could lead to damage to the ship's hull or unsafe conditions.
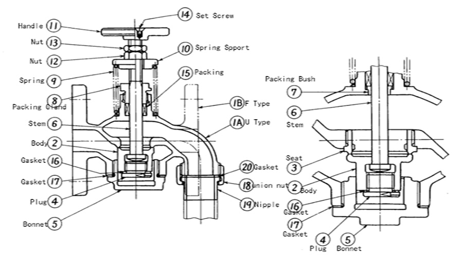
Main Structure
Self-closing valve consists of valve body, valve disc, valve seat, valve stem, spring, spring seat, bonnet, packing gland and handle. With the general valve is different from the valve disc placed below the seat, relying on the tension of the spring located in the upper part of the valve body so that the valve disc is tightly pressed on the seat, to play the role of the cut-off. In order to ensure that the stem moves vertically up and down, the valve body is also equipped with a guide hole below. Need to open, press down on the handle, compression of the spring, so that the valve stem downward movement, so that the valve disc away from the valve seat, the media can flow from the outlet.
The marine self-closing valve has two forms: straight through(F Type) and elbow outlet(U Type) . Used for oil tank water discharge, generally use the outlet elbow of the self-closing valve, the outlet does not take over the tube, the deck below is equipped with a funnel, in order to observe the release of the medium, when the medium contains more oil, should stop the discharge.

Images of Self Closing Valve

